Назад
Не выбрано
Не указано
Не выбрано
Не указано
Не указано
Не выбрано
Не выбрано
Не указано
Не указано
Не указано
Не указано
Не указано
Не выбрано
Не выбрано
Не выбрано
Не указано
Не указано
Не выбрано

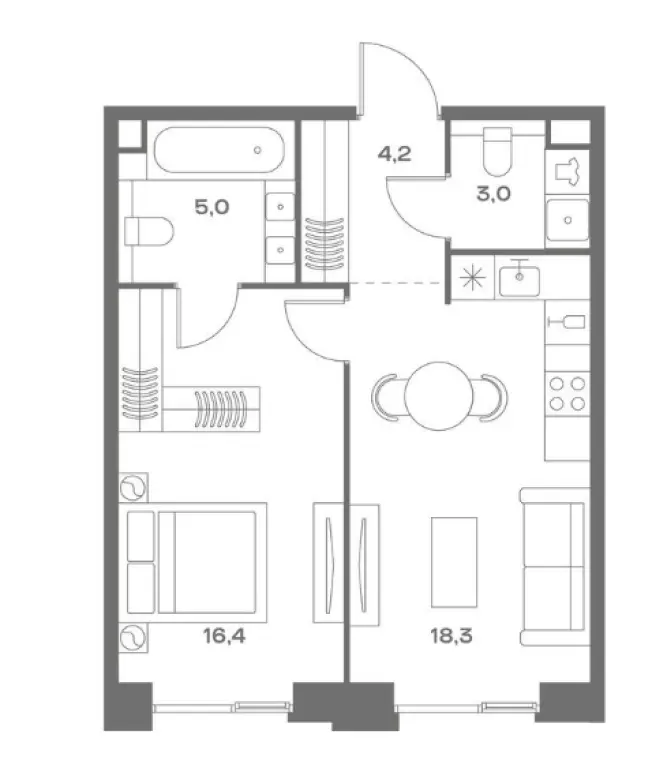
1-комн. квартира, 46.90 м2, 5 этаж - ЖК «СОУЛ»

2 месяца назад 50 (1 сегодня) №2623207509

Местоположение

Центральный федеральный округ, Москва, Часовая улица, 28к4

Описание

Продается просторная 1-комнатная квартира в новостройке в районе Аэропорт (САО) в престижном жилом комплексе бизнес-класса ЖК «СОУЛ». Уникальное предложение от надежного застройщика FORMA (ООО СЗ Часовая) для тех, кто ценит современную архитектуру, качественные монолитно-кирпичные дома и развитую инфраструктуру в шаговой доступности от центра Москвы.

Основное описание (Продающие блоки + Характеристики):
Представляем вашему вниманию комфортную квартиру с продуманной планировкой в строящемся квартале по адресу: Москва, ул. Часовая, вл. 28, корп. 7. Это идеальный вариант как для инвестиций в недвижимость на стадии строительства, так и для создания собственного уютного гнезда в динамично развивающемся районе.

Почему стоит купить эту квартиру:

Просторная площадь: 46.9 кв. м — отличный метраж для однокомнатной квартиры, позволяющий реализовать любые дизайнерские идеи.

Надежность строительства: Дом возводится по современной монолитно-кирпичной технологии, которая обеспечивает высокую сейсмоустойчивость, отличную звуко- и теплоизоляцию.

Престижный девелопер: Застройщик FORMA (ГК «Форма») известен на рынке своими авторскими проектами и высоким качеством отделки фасадов и мест общего пользования.

Расположение: Район Аэропорт (САО) славится своей развитой инфраструктурой, транспортной доступностью и близостью к центру столицы.

Условия приобретения:
Перспективный срок сдачи объекта — 1 квартал 2029 года. Для получения актуальной информации о вариантах и способах оплаты (рассрочка, ипотека, материнский капитал и другие программы) свяжитесь с нашим менеджером.

Важно!
Рыночная стоимость недвижимости меняется динамично. Актуальные цены уточняйте у менеджера. Для получения подробной информации и организации просмотра (когда это станет возможно) звоните по указанному телефону.

Характеристики

Застройщик: FORMA (Форма)
Название ЖК: «СОУЛ»
Класс новостройки: Премиум
Срок ГК: 1 квартал 2029 года
Стадия строительства: котлован/фундамент
Тип проекта: Монолитно-кирпичный
Комнат в квартире: 1 комната
Общая площадь: 46.90 м2
Этажность: 9
Этаж: 5
Отделка: Без отделки
Локация: САО
Метро: 10-20 минут
Способы покупки: Стандартная ипотека, Семейная ипотека, Рассрочка, Материнский капитал, На этапе котлована, Старт продаж, Трейд-ин, Переуступка
Отзывы 0

Отзывов пока нет 🥴

от 24 100 000 ₽
ЖК «СОУЛ»

Объявления из той же категории

Домой
Избранное
Добавить
Чат
Профиль