Назад
Не выбрано
Не указано
Не выбрано
Не указано
Не указано
Не выбрано
Не выбрано
Не указано
Не указано
Не указано
Не указано
Не указано
Не выбрано
Не выбрано
Не выбрано
Не указано
Не указано
Не выбрано

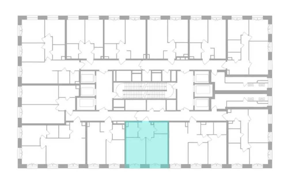
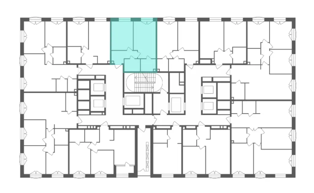
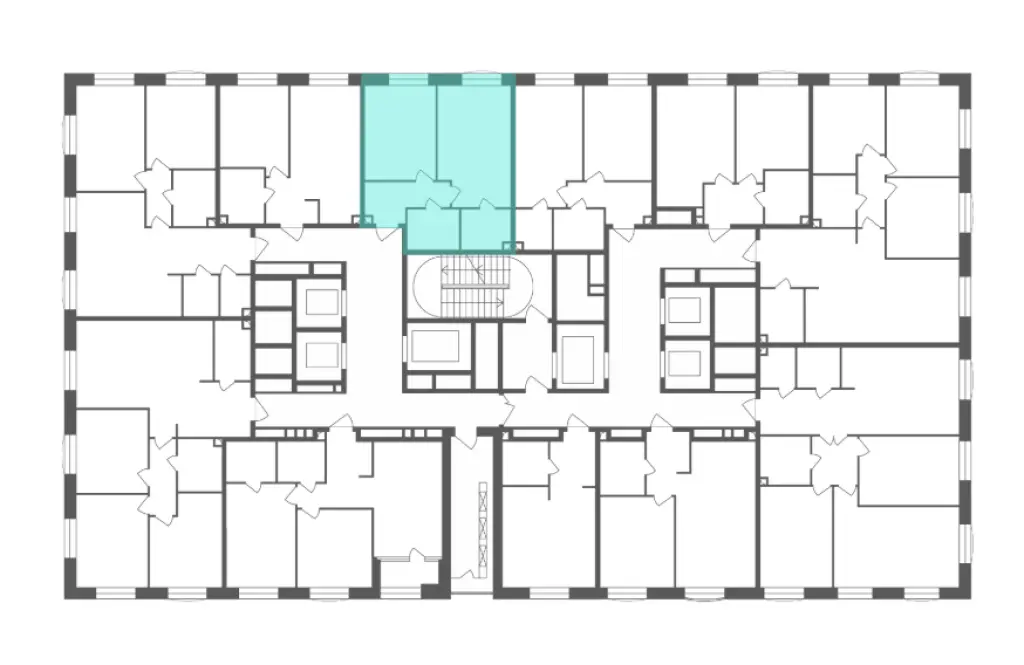
2-комн. квартира, 44.90 м2, 14 этаж - ЖК ERA (ЭРА)

3 месяца назад 61 (1 сегодня) №0531438504

Местоположение

Центральный федеральный округ, Москва, Дербеневская улица, 20с2

Описание

Ваша двухкомнатная квартира в современном ЖК «ЭРА» в Даниловском районе.

Расположение — это ключевое преимущество: Южный административный округ Москвы, ул. Дербеневская, — перспективное и быстроразвивающееся направление с отличной транспортной доступностью.

О квартире и ЖК:

Площадь: 44.9 кв. м. — оптимальный метраж для комфортной жизни семьи или пары.

Технологии: Дом построен по монолитно-кирпичной технологии от надежного застройщика СЗ «ДЕРБЕНЕВСКИЙ», что гарантирует высокое качество, тишину и долговечность.

Срок сдачи: 3 квартал 2026 года. Вы приобретаете квартиру в новостройке с чистовой отделкой — это ваш шанс создать интерьер с нуля, полностью отражающий ваш вкус.

Оплата: Доступны различные гибкие способы оплаты. Все детали мы обсудим индивидуально.

Это не просто квадратные метры, это — ваш будущий дом в современном комплексе с собственной инфраструктурой.

Точную актуальную стоимость квартиры уточняйте, пожалуйста, у нашего менеджера, так как цены могут меняться.

Готовы рассказать больше и организовать просмотр? Звоните!

Характеристики

Застройщик: Tekta Group
Название ЖК: ЖК ERA (ЭРА)
Класс новостройки: Комфорт
Срок ГК: 3 квартал 2026 года
Стадия строительства: отделка фасада
Тип проекта: Монолитно-кирпичный
Комнат в квартире: 2 комнаты
Общая площадь: 44.90 м2
Жилая площадь: 13.60 м2
Этажность: 33
Этаж: 14
Отделка: White Box
Локация: ЮАО
Способы покупки: Стандартная ипотека, Семейная ипотека, Старт продаж
Отзывы 0

Отзывов пока нет 🥴

от 38 890 000 ₽
ЖК ERA (ЭРА)

Объявления из той же категории

Домой
Избранное
Добавить
Чат
Профиль