Назад
Не выбрано
Не указано
Не выбрано
Не указано
Не указано
Не выбрано
Не выбрано
Не указано
Не указано
Не указано
Не указано
Не указано
Не выбрано
Не выбрано
Не выбрано
Не указано
Не указано
Не выбрано

Уютная однокомнатная квартира в востребованном районе ЮВАО

1 месяц назад 61 (2 сегодня) №4174670914

Местоположение

Центральный федеральный округ, Москва, Люблинская улица, 72к3

Описание

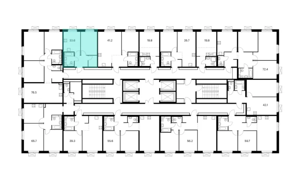
Хотите купить квартиру в Москве по выгодным условиям? Перед вами идеальный вариант для комфортной жизни или надежного вложения средств. Просторная 1-комнатная квартира в жилом комплексе «Люблинский парк» расположена по адресу: г. Москва, ЮВАО, р-н Люблино, ул. Люблинская, вл. 72, корп. 19. Общая площадь — 33.6 кв. м, что позволяет создать функциональное и уютное пространство.

Если вы решите купить квартиру от застройщика, этот объект станет отличным выбором. Дом современного типа (панельный, блочный, железобетон) возводится проверенными компаниями: ООО СЗ «ЛЮБЛИНО ДЕВЕЛОПМЕНТ», ПИК, ООО СЗ «ИТЭ», ООО СЗ «Люблино паркинг». Срок сдачи объекта — 3 квартал 2028 года. Это значит, что вы приобретаете жилье в одном из самых динамично развивающихся районов столицы.

Новостройки Москвы такого уровня — редкость по соотношению цены и качества. Уточните доступные способы оплаты у продавца, чтобы подобрать наиболее удобный вариант. Более подробная информация — по телефону, указанному в объявлении.

Цены на квартиры могут меняться в зависимости от рыночной ситуации. Актуальную стоимость и условия уточняйте у менеджера.

Характеристики

Застройщик: ПИК
Название ЖК: Люблинский Парк
Класс новостройки: Комфорт
Срок ГК: 3 квартал 2028 года
Стадия строительства: монтаж нижних этажей
Тип проекта: Панельный
Комнат в квартире: 1 комната
Общая площадь: 33.60 м2
Этажность: 25
Этаж: 22
Отделка: Чистовая
Локация: ЮВАО
Метро: 10-20 минут
Способы покупки: Стандартная ипотека, Семейная ипотека, Рассрочка, Материнский капитал, Старт продаж, Трейд-ин, Переуступка
Отзывы 0

Отзывов пока нет 🥴

от 13 100 900 ₽

Объявления из той же категории

Домой
Избранное
Добавить
Чат
Профиль